Home

 

 

 Properties

 

 

 For Sale

 

 

 Contact Us

 

 

 

 

For Sale

Properties currently under construction and offered for sale...

The Wharf, Great Linford, Milton Keynes

ALL PLOTS NOW SOLD

 

        more photos...

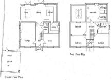
We are currently able to offer a Plot for sale with planning permission for a 4 bedroom detached home at our new development at The Wharf, Great Linford, Milton Keynes.  This secluded plot is available for purchase either as a self-build (plot with planning permission only) or may be purchased 'off-plan' as a finished product to be constructed by Seima Construction.

The property is to be constructed in brick and stone under a slate roof.  The approximate gross internal area is 2,270 square feet and will provide the following accommodation when completed: Entrance Hall, Lounge, Study, open plan Kitchen/Dining/Family Room, Utility Room and Cloakroom on the ground floor;  Master Suite with Dressing Room and Ensuite Bathroom, 3 further Bedrooms (1 Ensuite) and Family Bathroom on the first floor; Driveway with parking, detached Double Garage and front and rear gardens externally.

If you are interested in this property please contact us on 01604 864830 or via email: info@seimaconstruction.co.uk